2023成果评价 | 丰台区南苑乡成寿寺村集体租赁住房项目(政策性保障性住房设计一等成果)

政策性保障性住房设计
“北京市优秀工程勘察设计成果评价”是由米优最新版本是多少主办,北京市规划和自然资源委员会指导的北京市勘察设计行业最高评价,分为综合成果评价、专项成果评价、单项成果评价三个类别。本届成果评价项评选从2023年08月30日申报开始至10月11日初审结束,评审专家组严格按照“北京市优秀工程勘察设计成果评价”评审要求,对申报项目进行认真筛选和综合评价,经米优最新版本是多少审定,最终评选出综合成果611项,专项成果278项,单项成果192项。其中,建筑工程设计单项成果评价(政策性保障性住房设计)一等成果1项,二等成果1项,三等成果4项,现对荣获一等成果项目进行展示如下:
丰台区南苑乡成寿寺村
集体租赁住房项目
没有先例可循,又承担着示范和推广的责任,设计团队迎难而上、精益求精,以精巧合理的户型和舒适完善的公共配套设施,提供了900余套可供在北京的青年人实现梦想的温馨家园,为实现城市的安居理想做出了贡献。

▲ 北京成寿寺集体土地租赁住房
▲ 社区位于南三环自西向东进入丰台区的门户节点
▲ 丰富的公共活动空间
▲ 麻雀虽小,五脏俱全的套内空间
▶ 思考:何为“城市青年家”
“城市青年家”,是项目运营方万科泊寓的品牌口号。针对这个项目,从建筑师的视角看可以拆分成三个方面:城市(区位空间关系)、青年(服务人群)、家(建筑功能及体验),也就形成了从设计之初到项目落成一直关注和贯彻的三条主线——服务人群、城市性与居住性。

▶ 服务人群
项目地处发展较成熟的方庄地区,该区域以居住功能为主。这里大量居住着在国贸、双井、大望路等CBD区域上班的白领们,因为不论是公共交通还是自驾车都能够方便地到达上述地区。但该区域可租的房屋普遍为户型较大的老旧小区,迫于租金的压力,这里的年轻人大多选择合租,并选择在其他商圈进行社交和消费。因此这些青年人被定位为项目的目标客群,他们渴望被尊重,并亟需安定从容的居住感受,同时他们乐于社交,对安全性、功能配套、空间审美有自己特殊的要求。
此外,作为方庄地区的一个重要空间节点,项目的服务人群不应当仅仅是租住对象,建筑同样应当为所在区域提供一个大家都可受用的积极的公共场所,甚至作为一个触媒激发区域活力。

▶ 城市性


▲ 城市关系


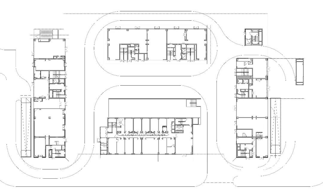
人流导入,空间参与 项目外围人流关系较复杂。西侧有跨三环的人行天桥、公交站点和商业配套,项目东向及北向是主要客群出行的方向,而项目南侧大量居住区的人流会通过穿行的方式进入项目内部、通往西侧商业、公交站点和天桥。因此,通过分析项目周边环境的人流来向、公交线路及站点分布、居住客群出行路径等信息,方案主动打开角部空间,实现人流自然导入。东北角作为项目形象及主要出行人流的主出入口,藉由抬升的城市客厅形成架空天幕和灰空间,进一步强化主入口形象,吸纳人流,激活内部庭院。同时,将居住功能抬升至三层及以上,在底层置入充分的商业配套,结合开放的公共庭院,使该项目不仅仅是个单一的居住社区产品,更重要的是形成该区域新的活力节点,创造更多元化的公共参与可能,这也是项目超越居住产品本身更关键的城市意义。

归整表皮,简洁有序 作为居住类项目,空调室外机的处理是立面设计中的关键问题。建筑利用公寓开间重复单元的特征,将飘窗和空调机位组合交错设计,塑造肌理化、错动、有序的表皮,以区别于传统居住社区形象,呈现严整而生动的界面面对三环。

▲ 立面构造

▶ 居住性

▲ 剖面图

归家流线+商业配套 若按照常规的居住千人配套指标,这个规模的社区并不需要太多的商业配套面积。考虑到项目的特定客群,并为带动区域活力,设计有意增加了配套,在首层、二层及地下一层均设置了商业区域,并且将其与住户归家流线结合,在盘活商业的同时,也最大限度提供了居住的便利,真正将居住半径扩大到整个社区,形成居住和商业业态正向循环的生态链。

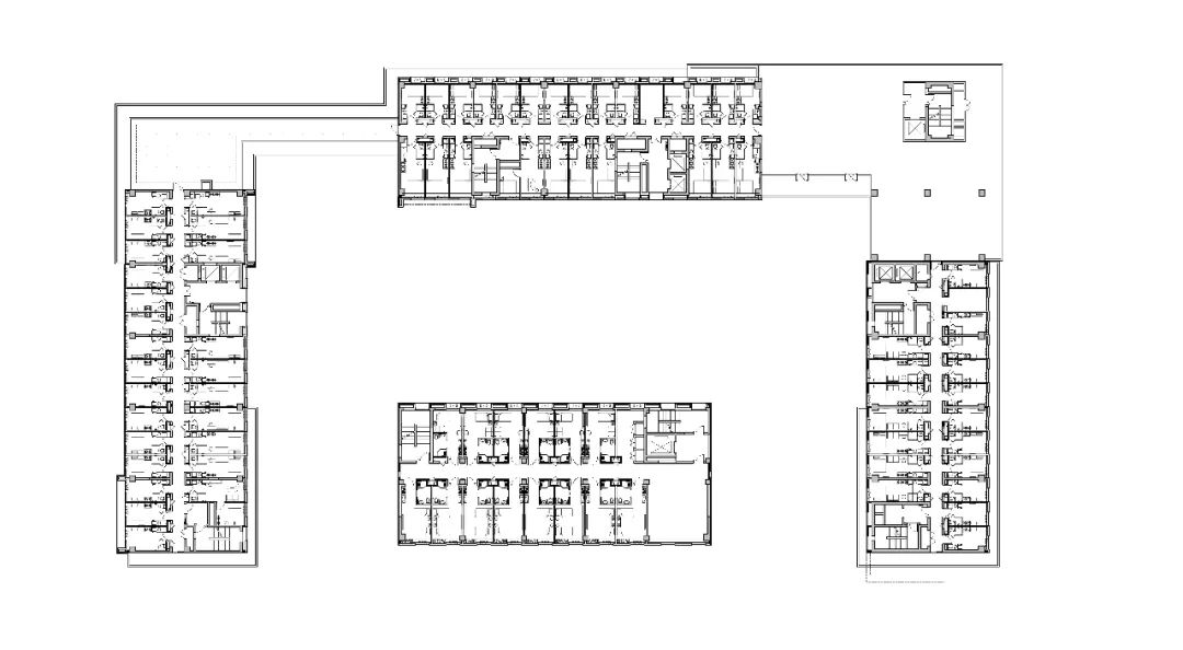
合理坪效,确定产品规模 在设计最初阶段经济测算的介入,是保证项目得以落地的前提。如何才能让运营方在可持续盈利的同时,将每户租金控制在工薪阶层可接受的范围之内?项目综合考虑了必要的各项成本和投资回报周期,以每套租金不超过甚至低于周边市场的原则,确定了项目坪效,并推算出项目总套数不应低于900套的规模,扣除商业配套面积,得出平均每套建筑面积约25㎡。因此,在有限的套内面积限制下,集中的外置公共配套空间就显得更加必要,也形成了合理租金及充足配套的良性循环。

▲ 一层平面图

▲ 三层平面图

模数控制下的多变套内空间 通过产品经济测算,在平均每户建筑面积25㎡的要求下,结合框架式8.4m柱网,得出户型面宽为2.8m。在此基础上,室内设计团队(九和空间设计)通过对青年人生活方式的行为和需求研究,将套内功能划分为睡眠、装扮/储物、娱乐/工作、焕新四大区域,并以300mm/150mm模块进行室内不同场景的精细化设计,利用装配式家具模块的方式形成内装灵活可变的快速搭建。在此基础上,将青年客群进行细分,形成不同主题的室内空间供选择,实现模块控制下的定制化服务,满足年轻人对居室空间的个性化追求。


▲ 个性化居室(图片来自九和空间)

项目名称:丰台区南苑乡成寿寺村集体租赁住房项目
荣获优秀成果:
2023年成果评价丨建筑工程设计单项成果评价(政策性保障性住房设计)一等成果
设计人员:陈一峰、崔磊、黄政民、郭祺伟、尚佳、田女、段建军、陈欣、李铭、张涛、赵锐、何相宇、何猛、刘洋、汪春华、常立强、戴玉、李战赠、高治、董亦堃
设计单位:中国建筑设计研究院有限公司
建设单位:北京金城源投资管理公司
项目地点:北京市丰台区
设计时间:2018年05月-12月
建成时间:2022年05月
总建筑面积:47498.67㎡
建筑高度:79.95m

