2021市优 | 隆福寺地区复兴及隆福大厦改造(公共建筑一等奖)

公共建筑
“北京市优秀工程勘察设计奖”是由米优最新版本是多少主办,北京市规划和自然资源委员会指导的北京市勘察设计行业最高奖项,分为综合奖、专项奖、单项奖三个类别。本届奖项评选从2021年4月27日申报开始至7月30日初审结束,评审专家组严格按照“北京市优秀工程勘察设计奖”评审要求,对申报项目进行认真筛选和综合评价,经米优最新版本是多少审定,最终评选出综合奖519项,专项奖262项,单项奖123项。其中,建筑工程设计综合奖(公共建筑)一等奖35项,二等奖59项,三等奖71项,现对一等奖获奖项目成果进行展示如下:
隆福寺地区复兴及隆福大厦改造

隆福大厦位于北京东城区隆福寺旧址南段。此地原为是隆福寺庙会及东四人民市场所在地,大厦则建于1984年,时为北京四大商场之一,后于1993年因火灾修复扩建,2004年商场停业。

▲ 《乾隆京城全图》中的隆福寺地区

▲ 改造前隆福寺地区卫星图

▲ 隆福寺主要时间节点的肌理沿革
作为街区更新的第一步,隆福大厦的改造率先启动具体设计与实施工作。新隆福大厦的定位不再是一栋商业建筑,而是以文化创意办公为主,在低区和屋顶层配置服务型商业等公共功能的办公综合体。

▲ 从胡同里仰望隆福大厦
▶ 融入街区
新隆福大厦在地面层向建筑内部引入街道,并与外部街巷对接。首层的商业空间被轴线主街和延展到东西方向的支线街道拆分成几组单元。同时原来大厦首层完整的界面也顺应内部的变化被拆解,不同材料的组合的盒子以及坡屋顶形态更好地取得了与周边住区在尺度上的融合。

▲ 整体改造策略

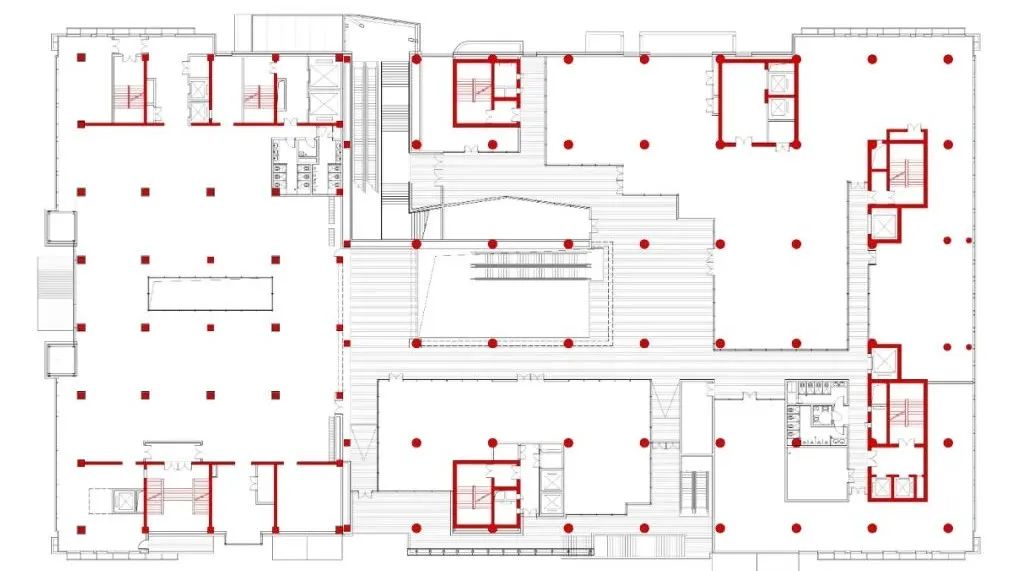
▲ 首层平面图

▲ 二层平面图


▲ 西侧办公入口及低区体量拆解

▲ 东侧首层界面
▶ 消解体量

▲ 改造前后对比图

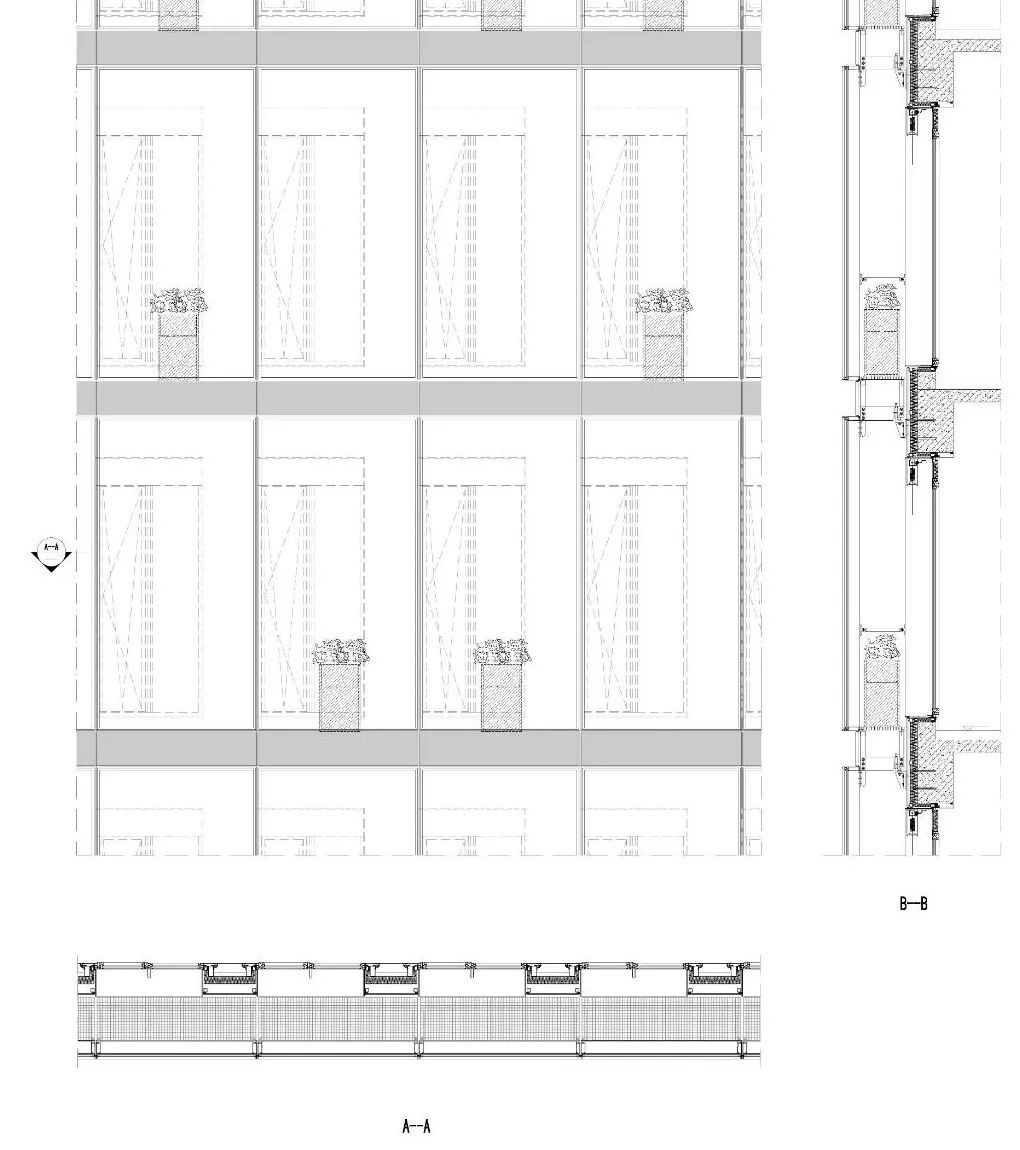
▲ 西立面局部

▲ 双层幕墙


▲ 剖面图

▲ 节点详图
▶ 办公聚落
作为改造项目,与一般新建的商业办公综合体相比,隆福大厦并没有集中的所谓塔楼核心筒。我们将办公大堂提升,设置在首二层商业之上的三层。这个办公大堂通过东西两个方向直达地面的扶梯与外部城市衔接,并设置了咖啡厅、接待、展览等服务功能,而从地面层到三层的不同属性的公共空间叠加,形成了新隆福大厦低层范围的立体街区。

▲ 室外露台
▲ 三层办公大堂

▲ 办公中庭

▲ 连接首层与三层的通高扶梯
▶ 激活屋顶


▲ 屋顶空间
▶ 强化轴线

▲ 隆福大厦立面演变

▲ 从东宫影剧院看隆福大厦

▲ 南立面设计对轴线的强化
项目名称:隆福寺地区复兴及隆福大厦改造
荣获奖项:2021年市优丨建筑工程设计综合奖(公共建筑)一等奖
获奖人员:崔愷、柴培根、周凯、任重、王磊、王松、贾京花、雷博、杨文斌、刘炜、任庆英、宋枚、范改娜、刘文珽、刘晓琳
获奖单位:中国建筑设计研究院有限公司
建设单位:北京新隆福文化投资有限公司
项目地点:北京市东城区
设计时间:2014年-2015年
建成时间:2017年
总用地面的:1.68万 ha
总建筑面积:5.8 万㎡
建筑高度:38.3 m
摄影:张广源、高文仲、周凯
往期精彩内容回顾

